TOP(ご挨拶)
工務店
建築士事務所
:耐震補強設計
:インスペクション
:会社概要
不動産部
〒640-8391
和歌山市加納329-4
電話 073-473-7026
メール送信
TOP
工務店
不動産部
設計事務所
設計部門では耐震診断及び耐震改修設計、既存住宅の状況調査(インスペクション)等の設計業務を行っております。
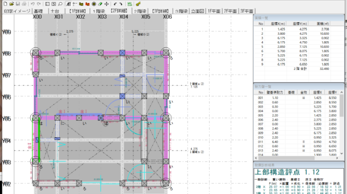
自社開発ツールの紹介。
会社概要
会社名
友渕工務店 二級建築士事務所
代表者
友渕 真孝
所在地
〒640-8391
和歌山市加納329-4
設計事務所登録
和歌山県知事登録 (チ)281-3号